賃貸倉庫物件情報(東京都)
現在掲載中の物件は一部です。東京・神奈川の他のエリアをお探しの方はこちらよりお問い合せ下さい。
| 賃貸物件情報(東京都)のご紹介 | |||||
|---|---|---|---|---|---|
| 種別 | 坪数 | 所在 | 賃料 | 築年月 | |
| 事務所・営業所 | 150.03坪 | 大田区城南島2-4-11 | 92.9435万円 | 1988年04月 | |
| 物件名 | 富士セイラ城南島第二事業所 | ||
| 所在地 | 東京都大田区城南島2-4-11 | ||
| 交通 | JR京浜東北線 大森駅 バス25分(城南島2丁目停留所徒歩1分) |
||
| 物件種目 | 賃貸 事務所・営業所 | ||
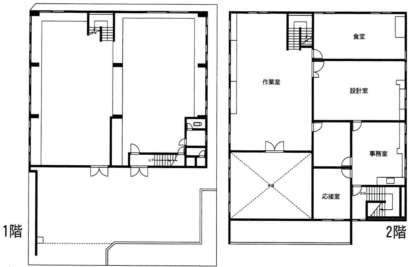
| 階建 / 階 | 2階建 / 階 | 建物構造 | 鉄骨造 |
| 床面積 | 1階:270m2(81.68坪) 2階:225.96m2(68.35坪) |
坪数 | 150.03坪 |
| 賃料 | 92.9435万円 | 管理費等 | - |
| 敷金 / 保証金 | 3ヶ月 / - | 礼金 | 1ヶ月 |
| 保証金償却 | - | 坪単価 | - |
| 維持費等 | - | 駐車場 | 7台有り |
| 築年月 | 1988年04月 | 用途地域 | 工業専用地域 |
| 接道状況 | - | 設備 | トイレ |
| 備考 | クレーン1基有り 営業所向きです! 諸条件応相談! 天井高:3800mm トイレ男女別 |
||
| 契約期間 | 3年 | 更新料 | なし |
| 現況 | - | 引渡し | 相談 |
| 情報公開日 | 2011年12月21日 | 物件番号 | 000028 |
| 間取り図 |
![]() 拡大表示 |
||
| お問い合わせ | |||
| 倉庫(川崎・横浜)HOME > 賃貸物件情報(東京都) > 賃貸事務所・営業所(大田区城南島2-4-11) | |||
株式会社サンプレイス
〒157-0077
東京都世田谷区鎌田3-18-4
アクセスマップ
TEL:03-3708-8833
FAX:03-3708-8855
東京都知事免許(6)第60862号
社団法人 全国宅地建物取引業協会
社団法人 東京都宅地建物取引業協会
〒157-0077
東京都世田谷区鎌田3-18-4
アクセスマップ
TEL:03-3708-8833
FAX:03-3708-8855
東京都知事免許(6)第60862号
社団法人 全国宅地建物取引業協会
社団法人 東京都宅地建物取引業協会

